Koop:Marijkelaan 17, 3781 VG Voorthuizen - Foto
+10

Marijkelaan 17 3781 VG Voorthuizen € 359.000,- k.k. € 1.402,34/m2

  • Winkelruimte
  • Bouwjaar 1963
  • 173 m² perceeloppervlakte
  • 256 m² vloeroppervlakte
  • A Energielabel A

Beschrijving

Representatieve bedrijfsruimte met pantry en toilet – Marijkelaan 17 (linker unit)

Op zoek naar een representatieve werk- en ontvangstlocatie voor jouw onderneming? Aan de Marijkelaan 17 is een zelfstandige bedrijfsruimte van ca. 256 m² beschikbaar voor verkoop en verhuur. Deze unit beschikt over een eigen pantry en toilet, waardoor je hier direct comfortabel en professioneel kunt werken.

De ruimte wordt volledig zelfstandig opgeleverd en voorzien van een nieuwe pui aan de voorzijde en een brandwerende scheidingsmuur ten opzichte van het naastgelegen deel. Met een frontbreedte van ca. 6 meter heeft het pand een opvallende uitstraling naar buiten en is er volop ruimte om klanten op een nette manier te ontvangen.

De indeling en omvang maken deze bedrijfsruimte geschikt voor uiteenlopende ondernemers. Denk aan een showroom, detailhandel of vakmensen zoals schilders, timmermannen of andere zzp’ers die behoefte hebben aan een representatieve werkplek met baliefunctie. Dankzij de twee eigen parkeerplaatsen voor de deur is het pand bovendien goed bereikbaar voor zowel klanten als leveranciers.

Locatie

De bedrijfsruimte ligt midden in een woonwijk, wat zorgt voor een constante aanloop en goede zichtbaarheid voor jouw onderneming. Tegelijkertijd is de bereikbaarheid uitstekend: binnen enkele minuten rijd je de A1 en A30 op. Hierdoor is de locatie aantrekkelijk voor zowel lokale klanten als regionale bereikbaarheid.

Oppervlakte
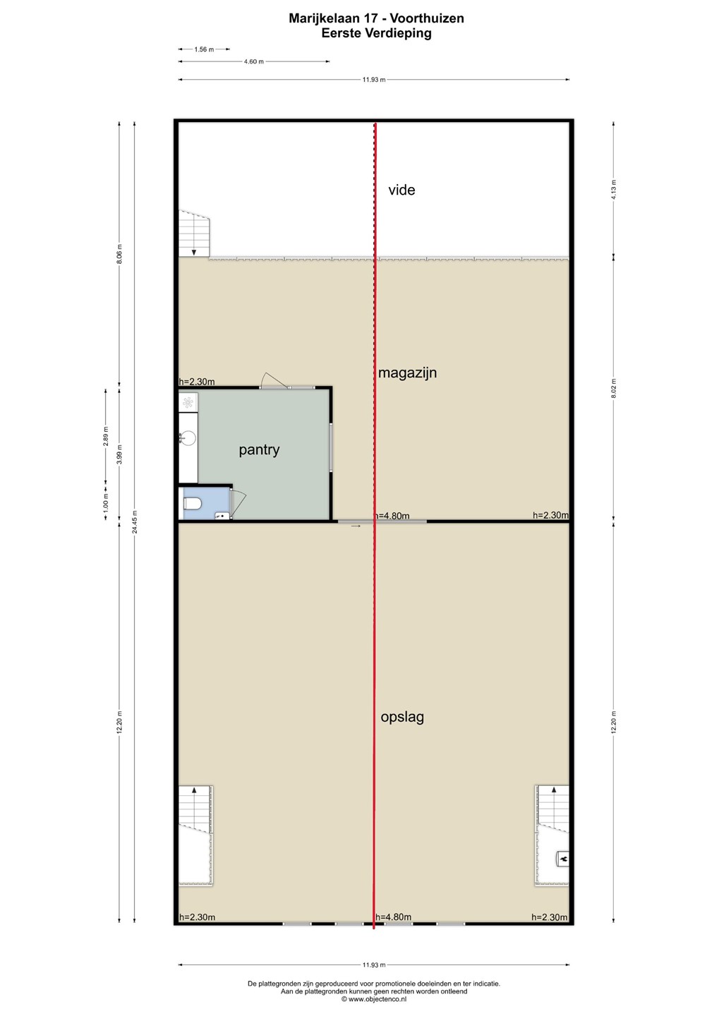
Totale oppervlakte ca. 256 m² VVO, verdeeld over:
Begane grond: ca. 138 m² VVO
Eerste verdieping: ca. 118 m² VVO
De ruimte is ingemeten conform NEN 2580. Het meetrapport is op verzoek beschikbaar.

Voorzieningen
• Betonvloer voorzien van vloerverwarming
• Systeemplafond met verlichtingsarmaturen
• Houten verdiepingsvloer
• Verwarming via cv-installatie
• Meterkast met eigen aansluitingen voor water en elektra
• Verkoper realiseert een tussenmeter voor gas
• Inpandige kantine/pantry en toilet op de verdieping

Bouwjaar
1963, gerenoveerd in 2019.

Energielabel
Energielabel A, geldig tot 11-12-2028.

Kadastrale gegevens
- Gemeente: Voorthuizen
- Sectie: F
- Nummer: 2289 (nader te splitsen)
- Totale oppervlakte: 3 are en 45 centiare (345 m²)

Parkeren
De bedrijfsruimte beschikt over 2 eigen parkeerplaatsen aan de voorzijde.

Bestemming
Enkelbestemming Detailhandel
• Maximaal bebouwingspercentage terrein: 100%
• Maximale bouwhoogte: 12 m
• Maximale goothoogte: 7 m
Wij adviseren om het voorgenomen gebruik vooraf bij de gemeente te toetsen.

Koop- en huurprijs
Koopprijs: € 359.000,- k.k.
Huurprijs: € 1.925,- per maand excl. btw

Aanvaarding:
In overleg en vrij van huur en gebruik.

Zekerheidstelling:
Koper dient binnen 3 weken na ondertekening van de koopovereenkomst een waarborgsom ter grootte van 10% van de koopsom te storten bij de notaris.

Notaris:
Ter keuze aan de koper.

Bijzonderheden:
Deze informatie wordt u verstrekt onder voorbehoud van goedkeuring door verkoper.
De vermelde informatie behelst geen aanbod doch globale informatie van algemene aard. De informatie is niet meer dan een uitnodiging om in onderhandeling te treden.
ZAAK Bedrijfsmakelaars staat niet in voor de juistheid en volledigheid van de informatie. Aan de inhoud van deze informatie kunnen geen rechten worden ontleend.

Kaart

Kenmerken

Overdracht

Vraagprijs
€ 359.000,- k.k.
Huurprijs
€ 1.925,- per maand
Aanvaarding
In overleg
Aangeboden sinds
Vrijdag 26 september 2025
Laatste wijziging
Dinsdag 10 maart 2026

Bouw

Type object
Winkelruimte
Eveneens
Bedrijfshal, buitenterrein
Soort bouw
Bestaande bouw
Bouwjaar
1963

Oppervlaktes en inhoud

Perceeloppervlakte
173 m²
Bruto vloeroppervlakte
256 m²

Locatie

Ligging
In woonwijk

Energieverbruik

Energielabel
A

Kadastrale gegevens

Kadastrale aanduiding
Voorthuizen F 2289
Perceeloppervlakte
173 m²
Omvang
Geheel perceel

Media

Foto's

Plattegronden

Brochure(s) en overige bijlagen