Verkocht onder voorbehoud:Oranjelaan 79, 3843 AB Harderwijk - Foto
Verkocht onder voorbehoud
+57

Oranjelaan 79 3843 AB Harderwijk € 1.295.000,- k.k. € 3.237,50/m2

  • Kantoor
  • Bouwjaar 1929
  • 2.128 m² perceeloppervlakte
  • 400 m² vloeroppervlakte

Beschrijving

Monumentale kantoorvilla op uitstekende locatie gelegen!

Ontdek deze twee karakteristieke kantoorvilla's, perfect voor een prestigieuze kantoorlocatie inclusief voldoende parkeergelegenheid op eigen terrein. Deze rietgedekte panden zijn elegant, functioneel en hebben een historische uitstraling. De villa’s zijn gelegen op twee separate percelen en op beide panden rust een kantoorbestemming en er is één woning toegestaan. U kunt één van de villa’s als ruime woning benutten en daarnaast is deze locatie uitermate geschikt voor gebruik als representatieve kantoorruimtes. Ideaal voor ondernemers die werk en privé willen combineren zonder concessies te doen aan stijl en uitstraling.

Het pand aan de Oranjelaan is gebouwd in 1929 en heeft een royaal oppervlak van 309 m². De karakteristieke voorgevel met deels houten bekleding en de rieten kap zullen u nieuwsgierig maken naar het interieur. Ook hier zijn authentieke elementen bewaard gebleven zoals glas in lood ramen, en suite deuren en houten balken plafonds. Zowel op de parterre als op de eerste verdieping zijn momenteel vier kantoren. De tweede verdieping is een grote zolder met verschillende nisjes, hier kunt u naar eigen idee en wensen de ruimte indelen.

Middels een gezamenlijke entree zijn de twee panden met elkaar verbonden. Daarnaast hebben beide woningen ook een eigen toegang. Engelserf is eveneens een rietgedekte karakteristieke woning en is rond 1950 gebouwd. De ruime living is momenteel opgedeeld in twee kantoren maar kan weer worden terugbracht naar de oorspronkelijke indeling. Aan de achterzijde van de woning is een ruime werkkamer met toegang tot de eenvoudige keuken en via de vaste trap is de eerste verdieping bereikbaar.

Harderwijk is een bruisende Hanzestad met een bloeiende economie en kent veel ondernemers. Het NS-station is op korte afstand evenals de op- en afrit van de A28.

Enthousiast geworden? U bent van harte welkom om deze bijzondere locatie te komen bezichtigen!

BOUWKENMERKEN

Bouwjaar: 1929;
Bouwwijze: Traditioneel;
Isolatie: Grotendeels dubbel glas;
Oppervlakte: ca. 309 m²;
Overige inpandige ruimte: ca. 91 m²;
Externe buitenruimte: ca. 6 m²;
Inhoud: ca. 1.450 m³;
Perceeloppervlakte: 2.128 m²;
Energielabel: een gemeentelijk monument heeft geen verplichting voor een energielabel;
Bestemming: zie Omgevingsloket.nl.

Gemeentelijk monument: Zowel Oranjelaan 79 als Engelserf 28 staan op de gemeentelijke monumentenlijst. De gemeente Harderwijk zet zich in om het erfgoed van de gemeente op duurzame wijze te behouden en heeft dit object/deze objecten aangewezen als monument vanwege schoonheid, cultuurhistorische of architectuurhistorische waarde van het object. Voor verbouwing, verplaatsing of sloop van een gemeentelijk monument is altijd een Omgevingsvergunning van de gemeente vereist. Als eigenaar van een gemeentelijk monument kunt u in aanmerking komen voor een subsidie vanuit de gemeente voor bijvoorbeeld het onderhoud van het object. Gemeente Harderwijk kent ook een subsidieregeling voor snoeiwerkzaamheden voor monumentaal groen.

INDELING

Oranjelaan 79 - Parterre
Aan de achterzijde van het pand is de entree. Via de voordeur komt u in de hal. Hier is het toilet met fonteintje en de opgang naar de eerste verdieping. Ook zijn alle ruimtes op de parterre toegankelijk vanuit de ruime hal met originele vloer. De eerste werkkamer heeft uitzicht op de Oranjelaan. De naastgelegen werkkamer met erker en vaste kast staat in verbinding door authentieke deuren en suite met de derde werkkamer. Hier treft u een schouw met open haard en rondom de deuren en suite is een prachtige ombouwkast voor uw bibliotheek. Via de openslaande deuren is direct toegang tot het terras. In de voormalige keuken en bijkeuken is het vierde kantoor ingericht. Hier is ook de toegang tot de kelder.

Oranjelaan 79 - 1e Verdieping
Op de eerste verdieping zijn eveneens vier werkkamers ingericht. Aan de linkerzijde is een kantoor en middels een aantal treden komt u in een ruime kamer die momenteel als archief wordt gebruikt. Deze ruimte is ideaal als een aparte zit- of studeerkamer bij de slaapkamer. En wat dacht u van een game- of chillkamer voor uw tieners? Het is mogelijk om vanuit deze ruimte toegang te creëren tot de eerste verdieping van Engelserf. De mogelijkheden zijn bijna onbeperkt! Kantoor twee heeft als eyecatcher een sfeervolle erker en een mooi uitzicht over de Oranjelaan. Onder de trap is een ingebouwde kast aanwezig. Kantoor drie is ruim en zelfs voorzien van twee ingebouwde kasten. De vierde werkkamer bevindt zich in de voormalige badkamer. De naastgelegen pantry heeft een eenvoudig keukenblok.

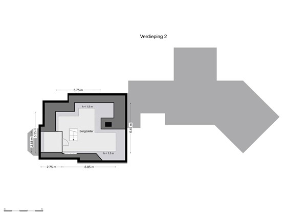
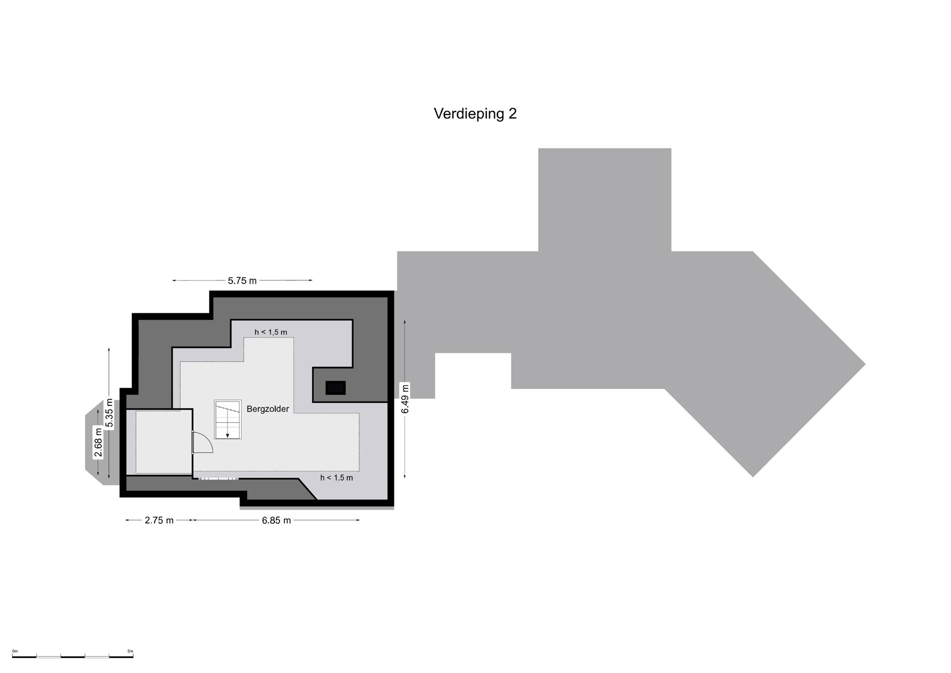
Oranjelaan 79 - 2e Verdieping
Via een vaste trap is de bergzolder bereikbaar. Deze ruime zolderverdieping heeft meerdere nisjes en hoeken.

Engelserf 28 - Parterre
Aan de achterzijde is eveneens de eigen ingang terwijl aan de voorzijde de beide panden aan elkaar zijn verbonden door de gezamenlijke entree. In deze entree is een toilet met fonteintje. De achteringang geeft toegang tot de eenvoudige keuken en het kantoor aan de achterzijde als ook de ruime werkkamer met schouw, open haard en symmetrische boekenkasten rondom de haard. Het derde kantoor bereikt u via de gang.

Engelserf 28 - 1e Verdieping
Vanuit het kantoor aan de achterzijde van de VILLA komt u via de vaste trap op de bergzolder. Momenteel is deze gehele ruimte in gebruik als archief. Voormalig was dit een zeer ruime zit- slaapkamer. Maar ook hier kunt u uiteraard denken aan het creëren van meerdere (slaap-) kamers. Tevens is hier de technische ruimte met CV-opstelling.

TUIN
Rietgedekte monumentale VILLA’s met vele historische kenmerken horen in een mooie balans te zijn met het omliggende erf. En dat is op dit perceel zeker gelukt! Volwassen loofbomen, uitbundige en royale rododendrons, rondom hagen en een royale gazonpartij maken het plaatje compleet. Ook de afwisseling van grind en keurig straatwerk passen in het geheel. Op het perceel zijn veel parkeerplaatsen gecreëerd vanwege het bedrijfsmatig gebruik van de panden. Uiteraard kunt u rondom meerdere terrassen aanleggen om te genieten van deze wonderschone plek.

BIJGEBOUW
Aan de achterzijde bij Engelserf staat een berging.

VOORZIENINGEN
- Alarm;
- Glasvezel;
- Het is mogelijk om de percelen Oranjelaan 79 en Engelserf separaat te verkopen mits een juiste brandcompartimentering is gerealiseerd (een wijziging hierin is vergunningplichtig).

Collegiale verkoop met Drieklomp Makelaars en Rentmeesters Nunspeet

Kaart

Kenmerken

Overdracht

Vraagprijs
€ 1.295.000,- k.k.
Status
Verkocht onder voorbehoud
Aanvaarding
In overleg
Aangeboden sinds
Maandag 17 maart 2025
Laatste wijziging
Dinsdag 10 februari 2026

Bouw

Type object
Kantoor
Soort bouw
Bestaande bouw
Bouwjaar
1929

Oppervlaktes en inhoud

Perceeloppervlakte
2.128 m²
Bruto vloeroppervlakte
400 m²

Kadastrale gegevens

Kadastrale aanduiding
Harderwijk D 8246
Perceeloppervlakte
1.040 m²
Omvang
Geheel perceel
Kadastrale aanduiding
Harderwijk D 8513
Perceeloppervlakte
231 m²
Omvang
Geheel perceel
Kadastrale aanduiding
Harderwijk D 8512
Perceeloppervlakte
207 m²
Omvang
Geheel perceel
Kadastrale aanduiding
Harderwijk D 8245
Perceeloppervlakte
650 m²
Omvang
Geheel perceel

Brochure(s) en overige bijlagen

brochure Download