Koop:Amersfoortseweg 28, 3751 LK Bunschoten-Spakenburg - Foto
+13

Amersfoortseweg 28 3751 LK Bunschoten-Spakenburg € 259.900,- v.o.n. € 833,01/m2

  • Bedrijfshal
  • Bouwjaar 2025
  • 312 m² vloeroppervlakte

Beschrijving

DE BOUW IS GESTART – NOG MAAR 3 UNITS BESCHIKBAAR! Grijp je kans!
Op een van de meest prominente locaties van bedrijventerrein De Kronkels verrijzen 17 exclusieve bedrijfsgebouwen, direct naast het historische "oudste boerderijtje van Bunschoten".

Project ‘De Boerderij’ ligt op de hoek van de Bisschopsweg en de Amersfoortseweg, een absolute zichtlocatie aan de aanrijroute naar Bunschoten-Spakenburg. Omringd door bedrijventerreinen De Kronkels (noordzijde) en Haarbrug-Zuid (oostzijde) biedt deze locatie uitstekende bereikbaarheid en een dynamische ondernemersomgeving.

Uniek in opzet, stijlvol in uitvoering
Dit kleinschalige project omvat drie architectonisch hoogwaardige gebouwen met een eigentijdse uitstraling. Dankzij de royale glaspartijen en karakteristieke schuine dakvlakken zijn de bedrijfsruimten licht, modern en functioneel.

Flexibele en hoogwaardige bedrijfsruimten
• Variërende oppervlakten: 100 m² – 142 m² BVO
• Vrije hoogte: ca. 3 meter – ruim 4,5 meter
• Totale hoogte: 7,2 meter – 10 meter
• Voorzien van een elektrisch bedienbare overheaddeur met loopdeur
• Inclusief verdiepingsvloer voor extra gebruiksruimte

Een unieke kans! Of je nu op zoek bent naar een representatieve bedrijfslocatie of een solide belegging, deze hoogwaardige bedrijfsgebouwen bieden de perfecte oplossing. Gelegen op een strategische zichtlocatie en centraal in Nederland!

Nog slechts 3 units beschikbaar – wees er snel bij!

Meer informatie?
Neem contact op voor een vrijblijvende afspraak op kantoor, op locatie of bij uw bedrijf.

Indeling en voorzieningen:
De bedrijfsgebouwen zullen in casco staat worden opgeleverd, maar wel voorzien van:?
• separate loopdeur per bedrijfsunit;
• elektrisch bedienbare overheaddeur 3,5 X 3 meter;
• gevlinderde betonvloer begane grond (1.000 kg / m²);
• vaste houten trap;
• ruwe verdiepingsvloer middels kanaalplaten (400 kg / m²);
• veel daglichttoetreding v.v. HR++ glas in aluminium kozijnen;
• extra rioolaansluiting;
• ombouw airco/warmtepomp;
• mantelbuis met trekkoord van meterkast naar eigen parkeerplaats t.b.v. aanleg laadpaal;

*Voor de uitgebreide voorzieningen en kopersopties verwijzen wij u door naar de verkoopbrochure, algemene informatie, technische omschrijving en de verkooptekeningen. Deze documenten zijn opvraagbaar bij ZAAK bedrijfsmakelaars.

Koopsommen en vloeroppervlakte?

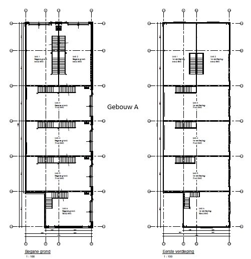
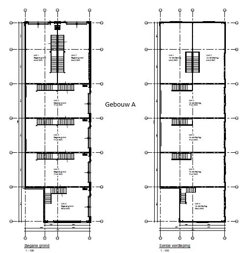
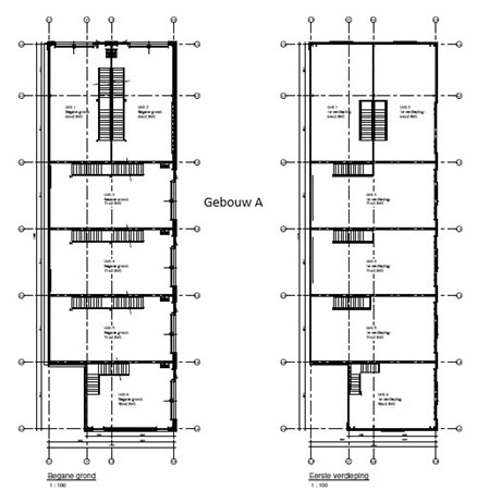
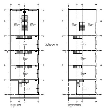
Gebouw A
Bouwnummer 1. 128 m2 BVO (evenredig verdeeld) VERKOCHT
Bouwnummer 2. 128 m2 BVO (evenredig verdeeld) VERKOCHT
Bouwnummer 3. 144 m2 BVO (evenredig verdeeld) VERKOCHT
Bouwnummer 4. 144 m2 BVO (evenredig verdeeld) VERKOCHT
Bouwnummer 5. 144 m2 BVO (evenredig verdeeld) VERKOCHT
Bouwnummer 6. 100 m2 BVO (evenredig verdeeld) € 299.900,- excl. btw en v.o.n. BESCHIKBAAR

Gebouw B
Bouwnummer 7. 126 m2 BVO (evenredig verdeeld) VERKOCHT
Bouwnummer 8. 99 m2 +27m2 BVO (63 m2 begane grond) VERKOCHT
Bouwnummer 9. 106 m2 BVO (71 m2 begane grond) € 259.900,- excl. btw en v.o.n. VERKOCHT
Bouwnummer 10. 106 m2 BVO (71 m2 begane grond) € 267.900,- excl. btw en v.o.n. VERKOCHT

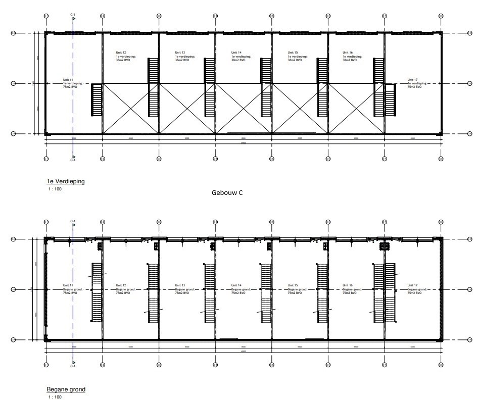
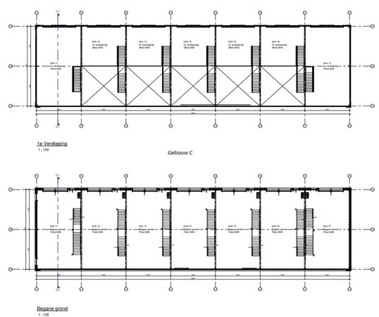
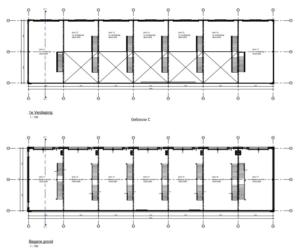
Gebouw C
Bouwnummer 11. 150 m2 BVO (evenredig verdeeld) VERKOCHT
Bouwnummer 12. 113 m2 BVO (75 m2 begane grond) VERKOCHT
Bouwnummer 13. 113 m2 BVO (75 m2 begane grond) VERKOCHT
Bouwnummer 14. 113 m2 BVO (75 m2 begane grond) VERKOCHT
Bouwnummer 15. 113 m2 BVO (75 m2 begane grond) VERKOCHT
Bouwnummer 16. 113 m2 BVO (75 m2 begane grond) VERKOCHT
Bouwnummer 17. 150 m2 BVO (evenredig verdeeld) VERKOCHT

De genoemde metrages zijn niet bepaald op basis van een NEN-meting en derhalve indicatief en vrijblijvend van aard.

Parkeren
Twee (2) parkeerplaatsen per bedrijfsunit.

Bestemming
Bestemmingsplan “bedrijventerrein 2 (haarbrug zuid)” met de functieaanduiding bedrijf tot en met categorie 2.

Kadastrale gegevens
Gemeente: Bunschoten
Sectie: N
Nummer: 1930
Oppervlakte: 3.000 m²

Bouwjaar
2025

Baten en lasten
Alle baten, lasten en verschuldigde canons, waaronder begrepen heffingen die voortvloeien uit de akte van splitsing en/of reglement (indien van toepassing) komen voor rekening van de kopende partij vanaf de datum van notarieel transport. De lopende baten, lasten en dergelijke, met uitzondering van de onroerende zaakbelasting wegens feitelijk gebruik, zullen tussen partijen naar rato worden verrekend.

Betaling
Gelijktijdig met de overdracht ten kantore van instrumenterend notaris.

Projectnotaris
Notariaat Eemmeer

Zekerheidsstelling
Bankgarantie of waarborgsom ter grootte van 10% van de koopsom, af te geven bij of te storten op de rekening van instrumenterend notaris.

Oplevering
Streefdatum Q4 2025.

Overige condities
Koop- aannemingsovereenkomst conform model notariaat.

Plattegrondtekeningen
De in deze projectinformatie opgenomen tekeningen zijn slechts van indicatieve aard. Hieraan kunnen geen rechten worden ontleend.

Ontwikkelaar
Kobro Vastgoed B.V.

De omgevingsvergunning is afgegeven en de bouw inmiddels gestart.

De opgenomen tekeningen in de verkoopbrochures geven een "artist impression" weer. Het kan voorkomen dat er verschillen zijn tussen deze impressie en de daadwerkelijke uitvoering. Aan de "artist impression" tekeningen kunnen dan ook geen rechten worden ontleend.

De vermelde informatie behelst geen aanbod doch globale informatie van algemene aard. De informatie is niet meer dan een uitnodiging om in onderhandeling te treden. ZAAK Bedrijfsmakelaars staat niet in voor de juistheid en volledigheid van de informatie. Aan de inhoud van deze informatie kunnen geen rechten worden ontleend.

Kaart

Kenmerken

Overdracht

Vraagprijs
€ 259.900,- v.o.n.
Aanvaarding
In overleg
Aangeboden sinds
Donderdag 10 april 2025
Laatste wijziging
Maandag 15 december 2025

Bouw

Type object
Bedrijfshal
Eveneens
Buitenterrein
Soort bouw
Nieuwbouw
Bouwjaar
2025

Oppervlaktes en inhoud

Bruto vloeroppervlakte
312 m²

Locatie

Ligging
Bedrijventerrein

Media

Foto's

Plattegronden

Brochure(s) en overige bijlagen

https://venumfilestore.blob.core.windows.net/pub/d17e529c/a44c/44b8/bfa1/1c6c05cbd8f4/20240613_algem Download
brochure Download