Prijsverlaging:De Dynamo 69, 3821 CJ Amersfoort - Foto
Prijsverlaging
+17

De Dynamo 69 3821 CJ Amersfoort € 389.000,- v.o.n. € 2.210,23/m2

  • Bedrijfshal
  • Bouwjaar 2024
  • 170 m² perceeloppervlakte
  • 264 m² vloeroppervlakte

Beschrijving

Moderne bedrijfsunit met voorzieningen nabij rijkswegen A1 en A28.

Deze prachtige en ruime bedrijfsunit nabij knooppunt Hoevelaken is beschikbaar voor de verhuur. De bedrijfsunit heeft een totale vloeroppervlakte van circa 176 m² bedrijfsruimte verdeeld over de begane grond en eerste verdieping.

De bedrijfsunit maakt onderdeel uit van twee recent gerealiseerde bedrijfsverzamelcomplexen, gelegen in de zuidelijke oksel van knooppunt Hoevelaken. Door de ligging zijn de op- en afritten van de rijkswegen A1 en A28 op een enkele autominuut reisafstand gelegen. De bedrijfsverzamelcomplexen zijn opvallend door het vele gebruik van glas, de mooie kapvorm en de representatieve gevel. Deze unit is gelegen in de kleinste van de twee bedrijfsverzamelcomplexen.

De bedrijfsunit is op de begane grond voorzien van een elektrisch bedienbare overheaddeur, separate loopdeur, gevlinderde betonvloer, een betegelde toiletruimte, elektrapunten en verlichting. De verdieping wordt voorzien van een verzorgde wand-/ en vloerafwerking. Daarbij wordt ook een pantry geplaatst en verlichting aangebracht. Verwarming en koeling is mogelijk middels airconditioning. Verder behoren er twee parkeerplaatsen bij deze bedrijfsunit. Op loopafstand, circa 2 minuten bevindt zich de busbaan met een verbinding met Amersfoort en Hoevelaken, Apeldoorn.

Bedrijventerrein De Wieken Vinkenhoef, waar de bedrijfsunit is gelegen, wil koploper zijn op het gebied van duurzaamheid en bedrijven werken nauw samen om een CO2-neutraal, circulair bedrijventerrein te worden. Gevestigde bedrijven zijn onder andere Havi, Besseling, Kraanbedrijf Huurdeman en tuincentrum Ranzijn tuin & dier. Tegen het bedrijventerrein aan ligt natuurgebied Bloeidaal, voor een heerlijk ontspannende wandeling.

Wilt u meer weten over dit geweldige pand?
Neem dan contact met ons op. Wij bieden u graag een vrijblijvende rondleiding aan op deze locatie. Zo kunt u direct beoordelen of uw bedrijf zich kan huisvesten op een nieuwe plek!

Indeling en voorzieningen
Het object zal worden opgeleverd in de huidige staat, onder meer voorzien van:
• gevlinderde betonvloer begane grond;
• elektrisch bedienbare overheaddeur;
• betegelde toiletruime begane grond;
• elektrapunten en verlichting voor beide bouwlagen;
• vloerafwerking verdieping;
• wandafwerking verdieping middels voorzetwanden;
• pantry v.v. vaatwasser, spoelbak en koelkast;
• verwarming en koeling middels airconditioning verdieping.

Vloeroppervlakte
De totale verhuurbare vloeroppervlakte bedraagt circa 176 m² bedrijfs-/kantoorruimte en is verdeeld over de begane grond en de eerste verdieping.

De genoemde metrages zijn niet bepaald op basis van een NEN-meting en derhalve indicatief en vrijblijvend van aard.

Parkeren
Bij de bedrijfsunit behoren twee (2) parkeerplaatsen.

Bestemmingsplan
Bedrijven in categorie 1 tot en met 2.

IN GEVAL VAN HUUR
Huurprijs:
De huurprijs bedraagt in het eerste jaar € 1.750,00 per maand, exclusief servicekosten en btw.
Vanaf het tweede jaar bedraagt de huurprijs € 1.995,00 per maand, exclusief servicekosten en btw.

Btw
Het uitgangspunt is btw belaste verhuur. Indien huurder de btw niet kan verrekenen dan zal de huurprijs met een nader vast te stellen bedrag worden verhoogd.

Huurprijsaanpassing
Jaarlijks, op basis van de wijziging van het maandprijs-indexcijfer volgens de consumentenprijsindex (CPI) reeks CPI-Alle Huishoudens (2015 = 100), gepubliceerd door het Centraal Bureau voor de Statistiek (CBS).

Servicekosten
Huurder is direct contractant bij de openbare nutsbedrijven.

Betaling
Huurpenningen, servicekosten en btw per maand vooruit.

Zekerheidsstelling
Afhankelijk van de financiële gegoedheid van de kandidaat een bankgarantie of waarborgsom ter grootte van minimaal drie (3) maanden huur, inclusief btw.

Aanvaarding
In overleg.

Huurtermijn
In overleg, beoogd wordt een drie jarige huurtermijn.

Opzegtermijn
In overleg.

Overige condities
Huurovereenkomst op basis van het meest recente standaardmodel van de Raad voor Onroerende Zaken (ROZ).

IN GEVAL VAN KOOP
Kadastrale gegevens
Gemeente: Amersfoort
Sectie: R
Nummer: 1606 A6
Ter grootte van 170 m².

Bouwjaar
2024.

Koopsom
€ 389.000,00 vrij op naam, exclusief btw.

Vereniging van Eigenaren
Koper is automatisch lid van de vereniging van eigenaars die beheerd wordt door een externe beheerder. Iedere eigenaar heeft stemrecht in de vereniging. De vereniging is er om de kwaliteit van het complex te waarborgen. Zaken die geregeld worden binnen de VVE zijn:
• opstalverzekering;
• aansprakelijkheidsverzekering;
• onderhoudsreserveringen voor met name het dak;
• onderhoud buitenterrein;
• gevelreiniging;
• gladheidsbestrijding;
• collectieve beveiliging.

Baten en lasten
Alle baten, lasten en verschuldigde canons, waaronder begrepen heffingen die voortvloeien uit de akte van splitsing en/of reglement (indien van toepassing) komen voor rekening van de kopende partij vanaf de datum van notarieel transport. De lopende baten, lasten en dergelijke, met uitzondering van de onroerende zaakbelasting wegens feitelijk gebruik, zullen tussen partijen naar rato worden verrekend.

Betaling
Gelijktijdig met de overdracht ten kantore van instrumenterend notaris.

Notaris
Ter keuze koper.

Zekerheidsstelling
Bankgarantie of waarborgsom ter grootte van 10% van de koopsom, af te geven bij of te storten op de rekening van instrumenterend notaris.

Aanvaarding
In overleg.

Overige condities
Koopovereenkomst conform model notariaat.

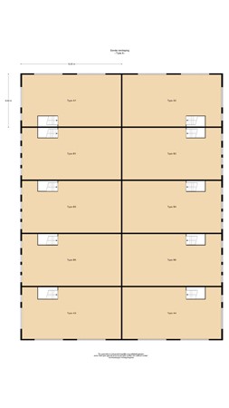
Plattegronden
De in deze projectinformatie opgenomen tekeningen zijn slechts van indicatieve aard. Hieraan kunnen geen rechten worden ontleend.

De vermelde informatie behelst geen aanbod doch globale informatie van algemene aard. De informatie is niet meer dan een uitnodiging om in onderhandeling te treden. ZAAK Bedrijfsmakelaars staat niet in voor de juistheid en volledigheid van de informatie. Aan de inhoud van deze informatie kunnen geen rechten worden ontleend.

Kaart

Kenmerken

Overdracht

Vraagprijs
€ 389.000,- v.o.n.
Huurprijs
€ 1.750,- per maand
Status
Prijsverlaging
Aanvaarding
In overleg
Aangeboden sinds
Dinsdag 11 november 2025
Laatste wijziging
Dinsdag 13 januari 2026

Bouw

Type object
Bedrijfshal
Eveneens
Kantoor, buitenterrein
Soort bouw
Bestaande bouw
Bouwjaar
2024

Oppervlaktes en inhoud

Perceeloppervlakte
170 m²
Bruto vloeroppervlakte
176 m²
Kantoor oppervlakte
88 m²

Locatie

Ligging
Bedrijventerrein
Bereikbaarheid
Afrit van de snelweg op 500 meter tot 1000 meter

Uitrusting

Aantal parkeerplaatsen
2
Aantal overdekte parkeerplaatsen
2

Kadastrale gegevens

Kadastrale aanduiding
Amersfoort R 1606
Perceeloppervlakte
170 m²
Omvang
Appartementsrecht of complex
Eigendomsituatie
Eigen grond

Media

Plattegronden