Verkocht:Marijkelaan 19, 3781 VG Voorthuizen - Foto
Verkocht
+8

Marijkelaan 19 3781 VG Voorthuizen € 349.000,- k.k. € 1.363,28/m2

  • Winkelruimte
  • Bouwjaar 1963
  • 345 m² perceeloppervlakte
  • 256 m² vloeroppervlakte
  • A Energielabel A

Beschrijving

Algemeen
Op zoek naar een representatieve werk- en ontvangstlocatie voor jouw bedrijf? Aan de Marijkelaan 19 is een zelfstandige bedrijfsruimte van ca. 256 m² beschikbaar voor zowel verkoop als verhuur.
De bedrijfsruimte wordt volledig zelfstandig opgeleverd en voorzien van een nieuwe pui aan de voorzijde en een brandwerende scheidingsmuur ten opzichte van het naastgelegen pand. Hierdoor ontstaat een nette, zelfstandige bedrijfsunit waar je jouw onderneming direct kunt vestigen.

Met een frontbreedte van ca. 6 meter heeft het pand een representatieve uitstraling en is er voldoende ruimte om klanten professioneel te ontvangen. De indeling en omvang maken de ruimte geschikt voor uiteenlopende ondernemers. Denk aan een showroom, detailhandel of vakmensen zoals schilders, timmermannen of andere zzp’ers die behoefte hebben aan een nette werkplek met ontvangstmogelijkheid.

Daarnaast beschikt de unit over twee eigen parkeerplaatsen aan de voorzijde, wat zorgt voor een goede bereikbaarheid voor zowel klanten als leveranciers.

Locatie
De panden liggen midden in een woonwijk, waardoor er een constante aanloop en goede zichtbaarheid is voor jouw bedrijf. Tegelijkertijd is de bereikbaarheid uitstekend: binnen enkele minuten rijd je de A1 en A30 op. Dat maakt deze locatie aantrekkelijk voor zowel lokale klanten als voor regionale bereikbaarheid.

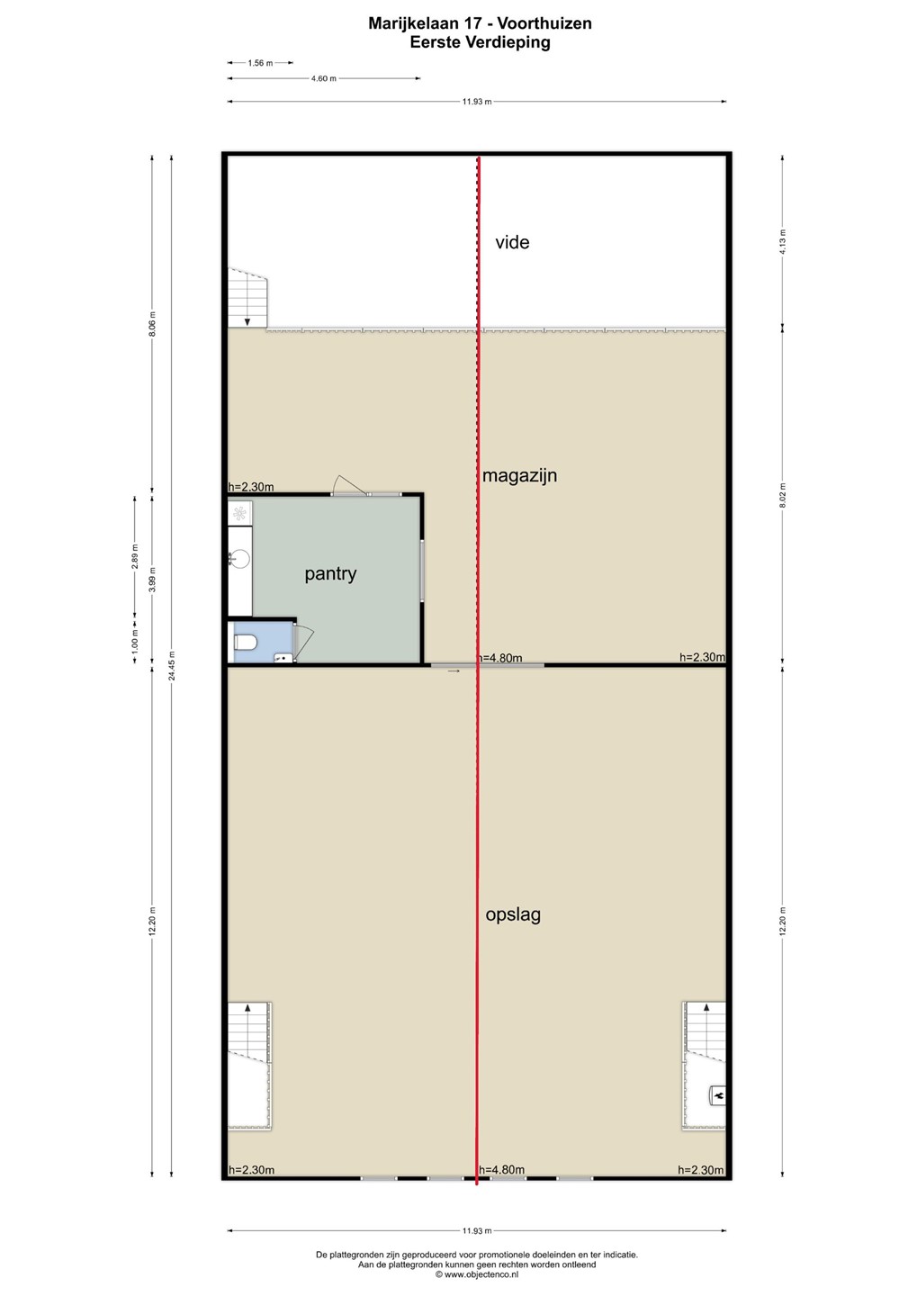
Oppervlaktes per bedrijfsruimte:
Begane grond: ca. 138 m² VVO
Eerste verdieping: ca. 118 m² VVO

De objecten zijn volgens NEN 2580 ingemeten en het meetrapport is op verzoek beschikbaar.

Voorzieningen:
• Betonvloer voorzien van vloerverwarming;
• Systeemplafond met verlichtingsarmaturen;
• Houten verdiepingsvloer;
• Verwarming via cv-installatie;
• Meterkast met eigen aansluitingen t.b.v. water en elektra;
• Verkoper realiseert tussenmeter voor het gas;
• Inpandige kantine, pantry en toilet op verdieping (linkerhelft).

Bouwjaar:
1963, gerenoveerd in 2019

Energielabel:
Beide panden beschikken over energielabel A, met een geldigheidsduur tot 11-12-2028.

Kadastrale aanduiding:
- Gemeente Voorthuizen
- Sectie F
- Nummer 2289 (nader te splitsen in twee kavels)
- Groot 3 are en 45 centiare (345m²)

Parkeren:
Elke bedrijfsruimte beschikt over 2 eigen parkeerplaatsen aan de voorzijde.

Bestemming:
Enkelbestemming Detailhandel
• maximum bebouwingspercentage terrein: 100%
• maximum bouwhoogte: 12 m
• maximum goothoogte: 7 m

Wij adviseren altijd vooraf het voorgenomen gebruik bij de gemeente te toetsen.

Koop- en huurprijs
Koopprijs: € 349.000,- k.k.
Huurprijs: € 1.900,- per maand excl. btw

Aanvaarding:
In overleg en vrij van huur en gebruik.

Zekerheidstelling:
Koper dient binnen 3 weken na ondertekening van de koopovereenkomst een waarborgsom ter grootte van 10% van de koopsom te storten bij de notaris.

Notaris:
Ter keuze aan de koper.

Bijzonderheden:
Deze informatie wordt u verstrekt onder voorbehoud van goedkeuring door verkoper.
De vermelde informatie behelst geen aanbod doch globale informatie van algemene aard. De informatie is niet meer dan een uitnodiging om in onderhandeling te treden.
ZAAK Bedrijfsmakelaars staat niet in voor de juistheid en volledigheid van de informatie. Aan de inhoud van deze informatie kunnen geen rechten worden ontleend.

Kaart

Kenmerken

Overdracht

Vraagprijs
€ 349.000,- k.k.
Huurprijs
€ 1.900,- per maand
Status
Verkocht
Aanvaarding
In overleg
Aangeboden sinds
Dinsdag 1 juli 2025
Laatste wijziging
Dinsdag 24 maart 2026

Bouw

Type object
Winkelruimte
Eveneens
Bedrijfshal, buitenterrein
Soort bouw
Bestaande bouw
Bouwjaar
1963

Oppervlaktes en inhoud

Perceeloppervlakte
345 m²
Bruto vloeroppervlakte
256 m²

Locatie

Ligging
In woonwijk

Energieverbruik

Energielabel
A

Kadastrale gegevens

Kadastrale aanduiding
Voorthuizen F 2289
Perceeloppervlakte
345 m²
Omvang
Geheel perceel

Media

Foto's

Plattegronden

Brochure(s) en overige bijlagen