Verhuurd:Plantageweg 19, 3833 AZ Leusden - Foto
Verhuurd
+19

Plantageweg 19 3833 AZ Leusden

  • Bedrijfshal
  • Bouwjaar 2024
  • 201 m² vloeroppervlakte

Beschrijving

Royale kopunit te huur op zichtlocatie aan de Plantageweg in Leusden

Algemeen
Ontdek deze representatieve bedrijfsunit op een prominente locatie aan de Plantageweg in Leusden, ideaal voor het vestigen van uw onderneming. Deze moderne kopunit maakt deel uit van een recent opgeleverd bedrijfsverzamelgebouw bestaande uit 6 eenheden, gelegen op het goed bereikbare bedrijvenpark De Plantage. De unit is per direct beschikbaar voor verhuur.

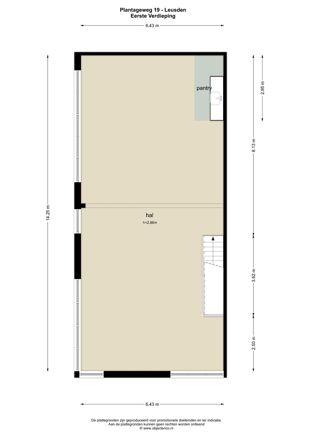
Met een totale oppervlakte van circa 201 m², verdeeld over twee verdiepingen, biedt deze unit volop ruimte voor uiteenlopende bedrijfsactiviteiten. Dankzij de ligging als kopunit aan de weg beschikt de unit over extra zichtbaarheid en uitstraling. De bovenverdieping is voorzien van royale glaspartijen, wat zorgt voor veel natuurlijk daglicht en een prettige werkomgeving.

Locatie:
Gelegen in het midden van Nederland, bereikt u deze unit in enkele minuten vanaf de snelwegen A1 en A28. Ook met het openbaar vervoer is het pand uitstekend bereikbaar dankzij een directe busverbinding naar station Amersfoort.

Oppervlaktes:
Begane grond : ca. 101 m² VVO
Eerste verdieping : ca. 100 m² VVO

De genoemde metrages zijn indicatief en niet vastgesteld volgens een NEN-meting.

Voorzieningen
• Vloerverwarming op zowel de begane grond als de verdieping (tot aan de verdeler);
• Een elektrische overheaddeur;
• Aluminium kozijnen;
• Een afgewerkte verdiepingsvloer;
• Nutsaansluitingen tot aan de meterkast.
• Betegelde toiletruimte met fonteintje
• Ledverlichting
• Voldoende WCD
• Pantry op de verdieping
• Warmtepomp t.b.v. verwarmen en koelen

Duurzaam en toekomstbestendig
Het gehele bedrijfsverzamelgebouw is onder architectuur ontworpen en straalt een moderne, duurzame uitstraling uit. Het pand is volledig gasloos, onderhoudsvriendelijk en biedt een representatieve werkomgeving.

Bouwjaar:
2024

Parkeren:
2 parkeerplaatsen aan de zijkant.

Bestemming:
Bedrijventerrein (categorie 1 t/m 2) volgens bestemmingsplan 't Spiegel 2010';
(bron: Ruimtelijkeplannen)
Wij adviseren altijd vooraf het voorgenomen gebruik bij de gemeente te toetsen.

Huurprijs:
€ 2.250,- per maand excl. btw en servicekosten.

Voorschot servicekosten:
Huurder wordt zelf contractant bij de nutsbedrijven v.w.b. de levering van water en elektra.
Verder wordt er maandelijks een bedrag aan servicekosten in rekening gebracht die betrekking hebben op periodiek onderhoud van het bedrijfscomplex zoals glas-/ gevelbewassing, etc.

Huurbetaling:
Per maand vooruit.

Huurprijsaanpassing:
Jaarlijks, voor het eerst 1 jaar na huuringangsdatum op basis van het prijsindexcijfer volgens de consumentenprijsindex, reeks CPI-alle huishoudens (2015=100), gepubliceerd door het Centraal Bureau voor de Statistiek.

Huurgarantie:
Een waarborgsom ter grootte van een volledige bruto kwartaalverplichting.

Huur- en verlengingstermijnen:
Huurtermijn wordt bepaald in overleg met verhuurder.

Huurcontract:
Op basis van het standaardmodel van de Raad voor Onroerende Zaken (ROZ).

Aanvaarding:
Per direct.

BTW:
Het uitgangspunt is een btw belaste verhuur.

Bijzonderheden:
Deze informatie wordt u verstrekt onder voorbehoud van goedkeuring door verhuurder.
De vermelde informatie behelst geen aanbod doch globale informatie van algemene aard. De informatie is niet meer dan een uitnodiging om in onderhandeling te treden. ZAAK Bedrijfsmakelaars staat niet in voor de juistheid en volledigheid van de informatie. Aan de inhoud van deze informatie kunnen geen rechten worden ontleend.

Kaart

Kenmerken

Overdracht

Prijs
€ 2.250,- per maand
Status
Verhuurd
Aanvaarding
In overleg
Aangeboden sinds
Vrijdag 27 juni 2025
Laatste wijziging
Maandag 2 maart 2026

Bouw

Type object
Bedrijfshal
Eveneens
Buitenterrein
Soort bouw
Bestaande bouw
Bouwjaar
2024

Oppervlaktes en inhoud

Bruto vloeroppervlakte
201 m²

Media

Foto's

Video

Plattegronden

Brochure(s) en overige bijlagen

brochure Download