Verkocht:Van Zuijlen van Nieveltlaan 60, 3771 AC Barneveld - Foto
Verkocht
+12

Van Zuijlen van Nieveltlaan 60 3771 AC Barneveld

  • Bedrijfshal
  • Bouwjaar 2026
  • 200 m² vloeroppervlakte

Beschrijving

Kleinschalig en exclusief project op bedrijventerrein De Valk in Barneveld.

Aan de rand van het hoogwaardige bedrijventerrein De Valk wordt een kleinschalig project, bestaande uit 7 nieuwbouw bedrijfsgebouwen gerealiseerd. De verwachting is dat de bouw eind 2025 zal starten en dat de oplevering in Q2 2026 zal zijn. Kenmerkend is de kleinschaligheid van het project en de ruime opzet wat zorgt voor voldoende maneuvreerruimte.

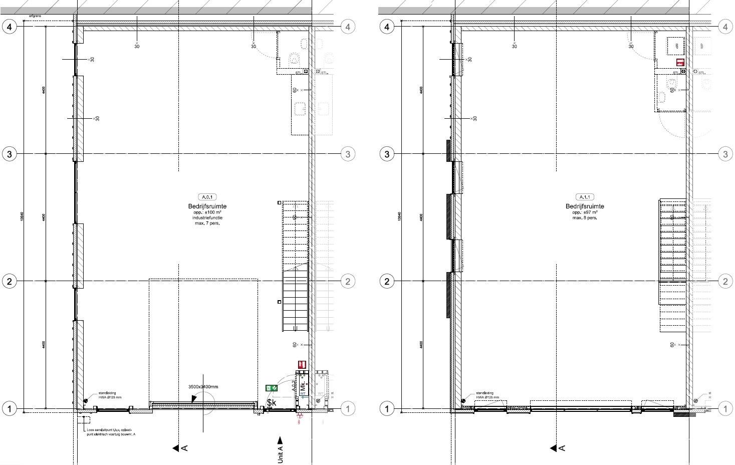
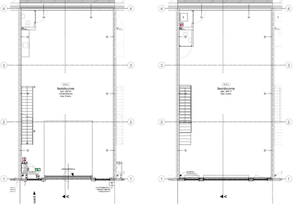
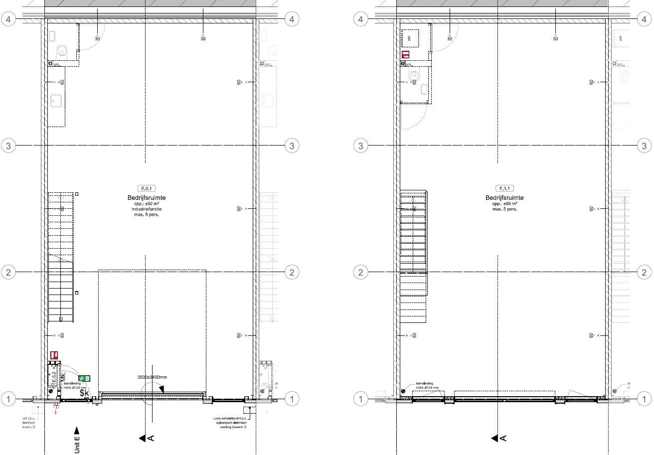
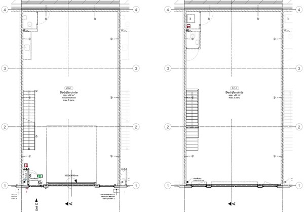
De bedrijfsgebouwen hebben een prachtig ontwerp met eiken houtlook zetwerk en wit composiet. Dit geeft het geheel een frisse uitstraling en daarmee uw bedrijf zonder meer een luxe en professionele uitstraling. De bedrijfsruimtes hebben een bruto vloeroppervlakte variërend tussen de ca. 200 m² en 224 m² evenredig verdeeld over de begane grond en verdieping.
Meerdere bedrijfsruimten kunnen worden samengevoegd.

Alle ruimtes zijn voorzien van een vaste trap richting de verdiepingsvloer en toegankelijk via een loopdeur en een elektrische bedienbare overheaddeur.

Locatie
Bedrijventerrein De Valk is een hoogwaardig bedrijven met een unieke ligging dicht bij het centrum van Barneveld. De Valk kent een groot aantal retailbedrijven zoals keukenbedrijven, badkamer- en meubelzaken. Bekende namen zijn Van Manen Wonen Thema Centrum, Elke kast op maat, Top Deuren, Van Iwaarden en de BDU. Hierdoor wordt dit bedrijventerrein veel bezocht door consumenten. Deze bedrijfsgebouwen worden gerealiseerd aan de rand van het bedrijventerrein wat zorgt voor een goede bereikbaarheid.
Ontsluiting en bereikbaarheid
Doordat het kavel is voorzien van 2 toegangswegen is er een optimale bereikbaarheid met een goede ontsluiting naar omliggende dorpen zoals Kootwijkerbroek maar ook de snelwegen A1/A30/A12 met een goede verbinding tussen respectievelijk Amsterdam – Enschede en Ede – Utrecht. Door de ligging aan de rand van het bedrijventerrein is het centrum van Barneveld op loopafstand bereikbaar evenals het treinstation Barneveld Centrum. Binnen 5 autominuten zijn de snelwegen

Wilt u meer weten over dit prachtige project?
Neem dan contact met ons op. Zo kunt u direct beoordelen of uw bedrijf zich kan huisvesten op een nieuwe plek!

Indeling en voorzieningen
De bedrijfsruimtes worden casco opgeleverd maar wel voorzien van:
• in het werk gestorte gewapende en monoliet afgewerkte betonvloer op begane grond met een belasting van 1.000 kg/m²;
• verdiepingsvloer van ruwe kanaalplaatvloer met druklaag en een nuttige belasting van 400 kg/m²;
• scheidende wanden van kalkzandsteen elementen;
• elektrische bedienbare overheaddeur van 3,5 x 3,5;
• buitengevels worden voorzien van beplating met een RC-waarde van minimaal 4,7 m² K/W;
• kozijnen en ramen worden uitgevoerd in aluminium en voorzien van HR++ beglazing;
• ventilatie geschiedt d.m.v. aluminium ventilatieroosters in de gevelkozijnen;
• het dak wordt uitgevoerd met kanaalplaatvloeren voorzien van isolatie en afgewerkt met bitumen met een gemiddelde isolatiewaarde van minimaal 6,3 m² K/W;
• iedere bedrijfsruimte wordt aangesloten op de riolering. Aansluitkosten zijn bij de koopsom inbegrepen;
• iedere bedrijfsruimte wordt opgeleverd met een elektra-aansluiting van 3 x 25A. Aansluitkosten en plaatsen meter zijn bij de koopsom inbegrepen;
• glasvezel aansluiting;
• open vurenhouten vaste trap naar de verdiepingsvloer;
• zelfstandige loopdeur;
• de vrij hoogte op de begane grond is ca. 3,7 meter en op de verdieping ca. 2,75

Parkeergelegenheid
Aan de voorzijde van het gebouw is voldoende manoeuvreerruimte en iedere bedrijfsgebouw heeft 3 eigen parkeerplaatsen aan de voorzijde.

Vloeroppervlakte*, parkeerplaatsen en koopsom**
Bouwnummer B.V.O. Parkeerplaatsen Koopsom
1 224 m² € 409.500,00 - Verkocht
2 200 m² € 359.500,00 - Onder optie
3 200 m² € 359.500,00 - Onder optie
4 200 m² € 359.500,00 - Onder optie
5 200 m² € 359.500,00 - Verkocht
6 200 m² € 359.500,00 - Onder optie
7 224 m² € 409.500,00 - Onder optie

* De genoemde metrages zijn niet bepaald op basis van een NEN-meting en derhalve indicatief en vrijblijvend van aard.
** Koopsommen zijn vrij op naam en exclusief btw.

Duurzaamheid
Duurzaam ondernemen begint met het maken van de juiste keuzes. De bedrijfspanden worden gasloos opgeleverd en iedere bedrijfsruimte krijgt een eigen meterkast met elektra- en wateraansluiting. Door het energiebesparende ontwerp van de gebouwschil, in combinatie met uitstekende isolatie hebben de bedrijfsruimtes een zeer lage energiebehoefte.

Bestemming
U mag de bedrijfsruimtes onder andere gebruiken als werkplaats, opslagruimte, magazijn en montageruimte, conform het geldende bestemmingsplan waarbij er een maximale milieucategorie geldt van 2.

Wilt u weten of uw (aanvullende) wensen passen binnen de bestemmingsmogelijkheden, neem dan contact op met de Gemeente Barneveld.

Juridische eigendom
Iedere bedrijfsruimte is gelegen op een eigen perceel grond. Er wordt dus tijdens de juridische levering een kavel verkocht en geen appartementsrecht. Daarom is er ook geen sprake van een vereniging van eigenaren en is er geen maandelijkse bijdrage verschuldigd.

Er is een mandelige toegangsweg die gemeenschappelijk eigendom is van het tegenover gelegen bedrijfspand en het naastgelegen en nieuw te ontwikkelen appartementencomplex. Voor het onderhoud van deze mandelige toegangsweg wordt een mandeligheidsakte opgesteld.

Bouwjaar
2026.

Baten en lasten
Alle baten, lasten en verschuldigde canons, waaronder begrepen heffingen die voortvloeien uit de akte van splitsing en/of reglement (indien van toepassing) komen voor rekening van de kopende partij vanaf de datum van notarieel transport. De lopende baten, lasten en dergelijke, met uitzondering van de onroerende zaakbelasting wegens feitelijk gebruik, zullen tussen partijen naar rato worden verrekend.

Notaris
Notariaat Ridderhof & Stelwagen uit Vaassen

Overige condities
Koopovereenkomst conform model notariaat.

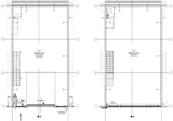
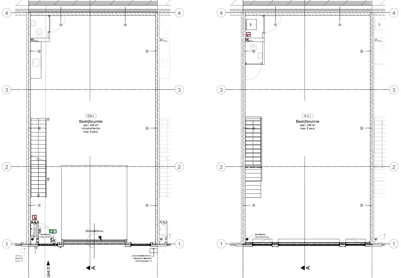
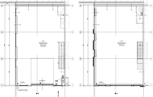
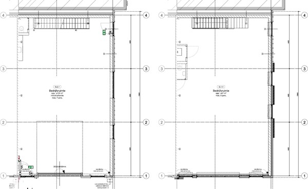
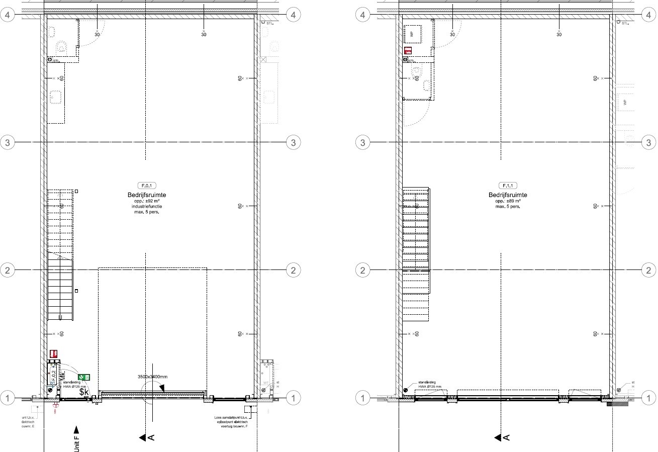
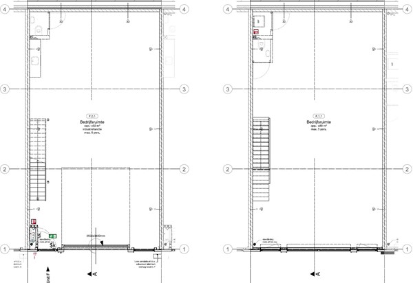
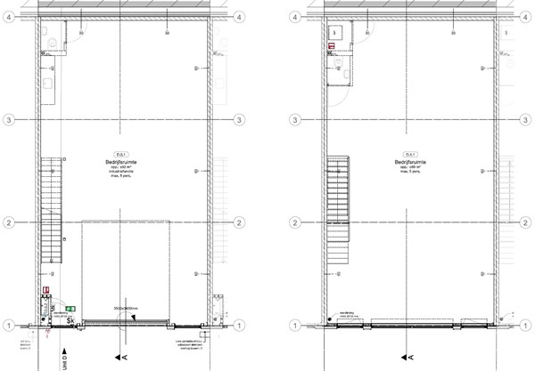
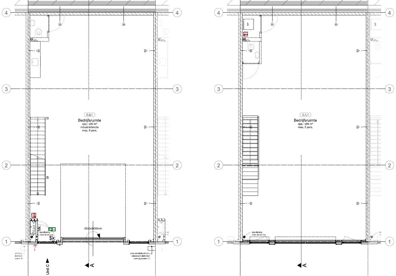
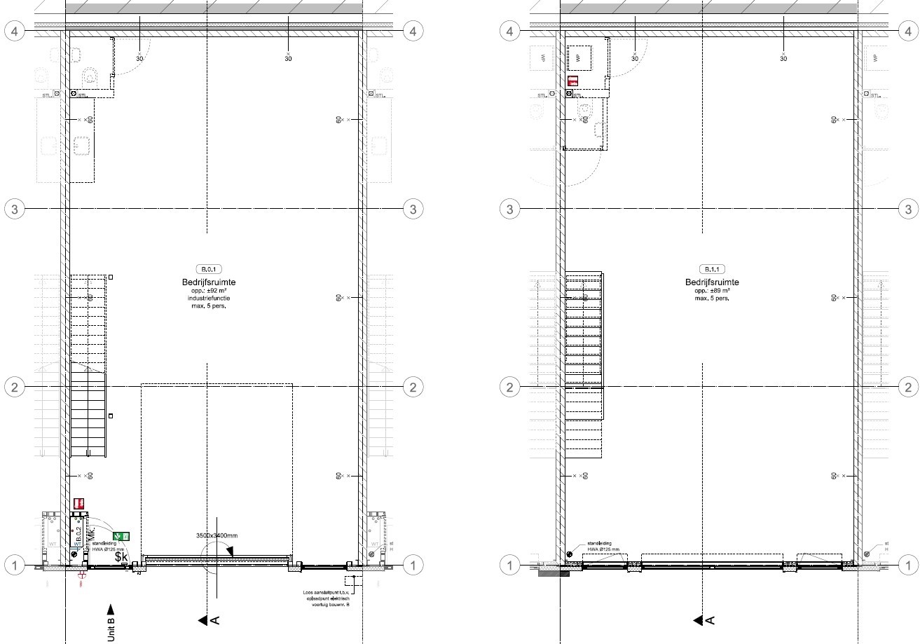
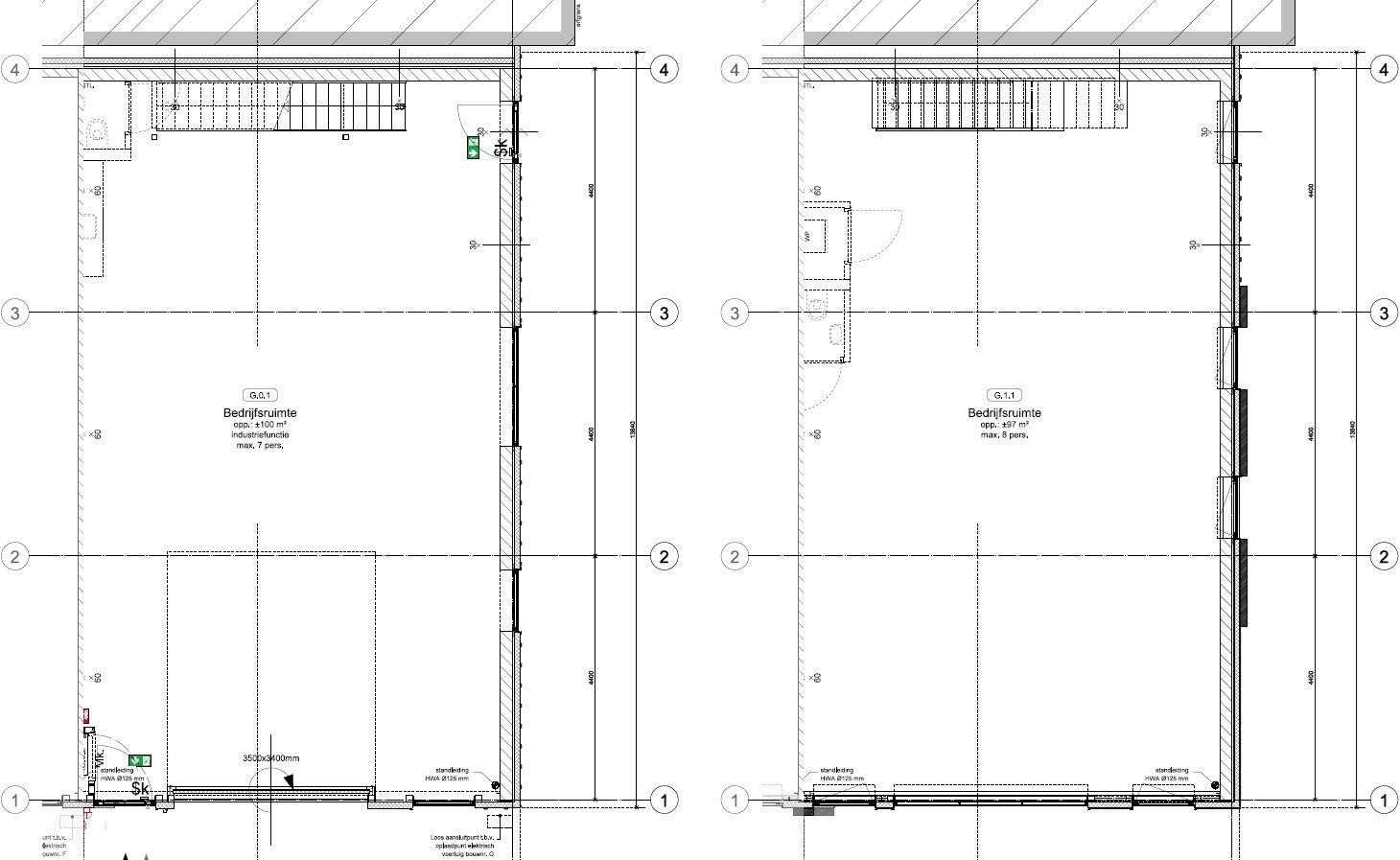
Plattegrondtekeningen
De in deze projectinformatie opgenomen tekeningen zijn slechts van indicatieve aard. Hieraan kunnen geen rechten worden ontleend.

De vermelde informatie behelst geen aanbod doch globale informatie van algemene aard. De informatie is niet meer dan een uitnodiging om in onderhandeling te treden. ZAAK Bedrijfsmakelaars staat niet in voor de juistheid en volledigheid van de informatie. Aan de inhoud van deze informatie kunnen geen rechten worden ontleend.

Kaart

Kenmerken

Overdracht

Vraagprijs
€ 359.500,- v.o.n.
Status
Verkocht
Aanvaarding
In overleg
Aangeboden sinds
Dinsdag 3 juni 2025
Laatste wijziging
Dinsdag 16 september 2025

Bouw

Type object
Bedrijfshal
Eveneens
Buitenterrein
Soort bouw
Nieuwbouw
Bouwjaar
2026

Oppervlaktes en inhoud

Bruto vloeroppervlakte
200 m²

Media

Plattegronden

Brochure(s) en overige bijlagen

brochure Download